
型號:RTWH
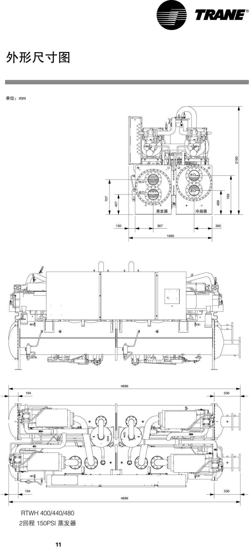
尺寸:4695*1725*2190
制冷量(KW):961.6KW~1758.9KW
制熱量(KW):988KW~1845.8KW
電壓:380V 3N 50Hz
簡介:特靈RTWH系列憑借其穩定可靠,高效技能,安裝方便,維護簡單等優勢,可廣泛應用于各種水源和土壤源等系統。不僅能滿足用戶的夏天制冷,冬天采暖需求,也可以通過合理系統設計,采用優先旁流系統,實現機組同時制冷和熱量回收,實現一機多用,顯著節能和節省用戶費用。制冷工況制熱工況30℃35℃7℃12℃未端用戶打井地埋管江河湖(污)水10℃7℃45℃38℃未端用戶打井地埋管江河湖(污)水
特靈RTWH簡介:






特靈RTWH產品特點:


以上就是京樂企服為大家整理《特靈RTWH水地源熱泵 帶?全?熱?回?收?及?雙?冷?凝?器》的全部內容了,如果還有疑問請咨詢24小時在線客服小姐姐。
本文標題:特靈RTWH水地源熱泵 帶?全?熱?回?收?及?雙?冷?凝?器
本文作者:京樂企服
本文鏈接:http://m.ailiw.cn/xiaoshou/teling/shuileng/611.html



